+11
Paris (75008)

Appartement 3 pièce(s) 2 chambre(s) 74.1 m²

1
Ascenseur
3 153,50 € CC*
Réf L10004955

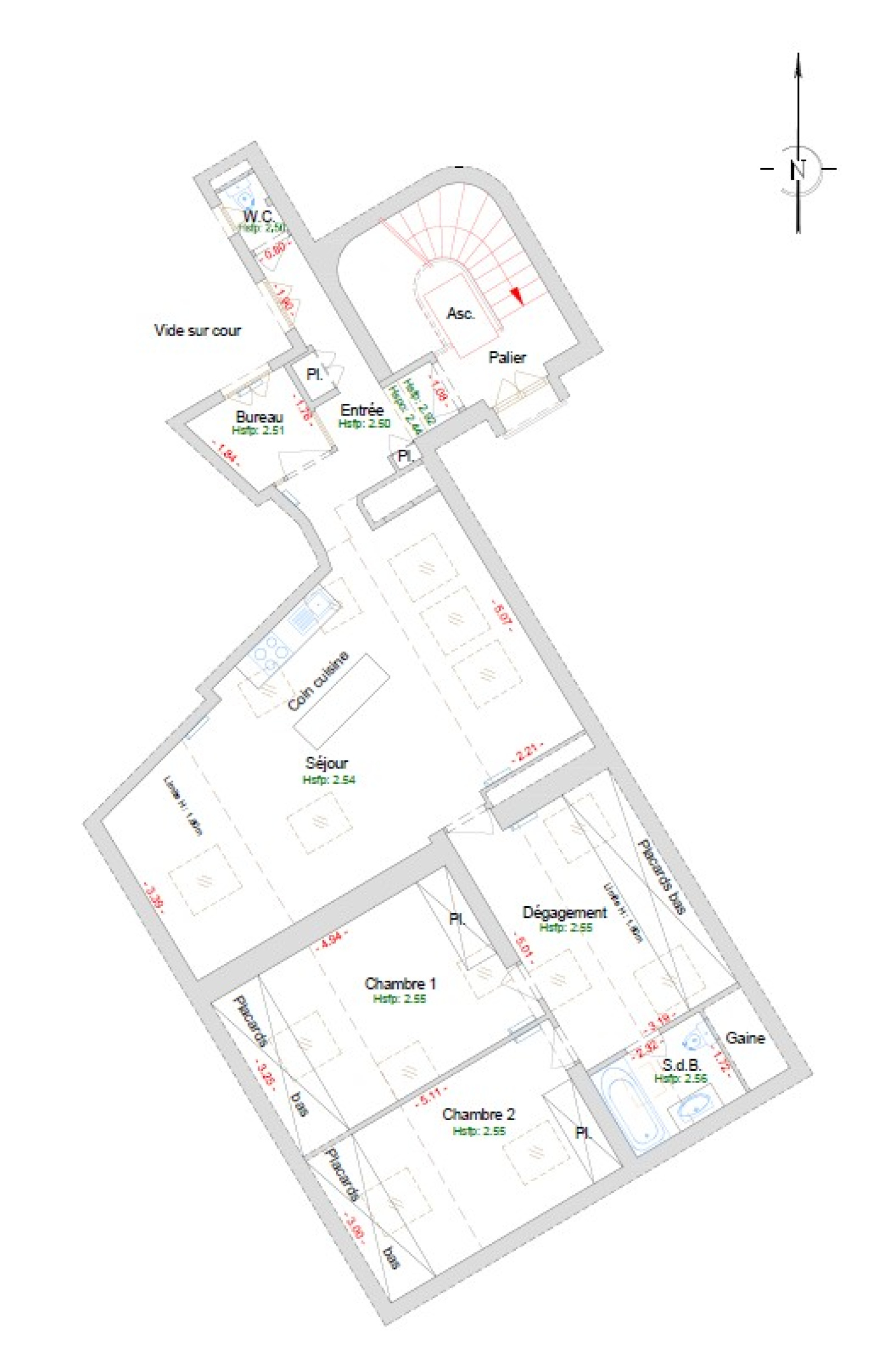
Situé au 5ème étage et dernier avec ascenceur d’un superbe immeuble avec une vue sur Tour Eiffel.

AXIMMO vous propose un spacieux et lumineux appartement mansardé de 3 pièces avec 98.85 m² de surface au sol . Il se compose d’une entrée, d’un petit bureau, d’un WC séparé, d’un séjour avec cuisine ouverte, de 2 chambres avec de nombreux rangements intégrés, d’un grand dégagement avec placards bas, ainsi que d’une salle de bains avec WC. L’appartement bénéficie d’une exposition est-ouest, offrant une belle luminosité naturelle grâce à ses nombreuses fenêtres/velux. L’immeuble dispose d’une gardienne. Digicodes.

Surface habitable : 74.10 m² - Surface au sol : 98.85 m².

Zone soumise à l'encadrement des loyers.

Loyer de référence majoré : 2 593,50 euros - Loyer de référence : 2 163,72 euros. Complément de loyer 250 euros.

(Si bail code civil, conditions exclues des champs d'application de la loi du 6 juillet 1989)

Disponible immédiatement après accord.


Contactez AXIMMO Paris 9

Bilan énergétique

Diagnostics énergetiques
Consommation énergétique
A B C D E F G
Emission de gaz à effet de serre
A B C D E F G

Montant estimé des dépenses annuelles d'énergie pour un usage standard est compris entre 1 040 € et 1 450 € . Prix moyens des énergies indexés sur les années 2021, 2022 et 2023 (abonnements compris).

A propos de ce bien Caractéristiques de ce bien
  • Surface 74,10 m²
  • séjour 27,10 m²
  • 2 chambre(s)
  • 1 salle(s) de bain
  • construit en 1881
  • cuisine américaine
  • Chauffage collectif : radiateur (gaz)
  • exposition Est-Ouest
  • 5ème étage
  • 5 étage(s)
  • ascenseur
  • vue Cour
  • quartier Friedland, Parc Monceau

Info copro

Copropriété
  • Copropriété Oui

Financier

Informations financières
Loyer CC* / mois 3 153,50 €
Honoraires TTC charge locataire 1 111,50 €
Zone soumise à encadrement des loyers OUI
Loyer de base 2 163,72 €
Loyer de référence majoré 2 593,50 €
Dont état des lieux 222,30 €
Dépôt de garantie TTC 2 843,50 €
Complément de loyer 250 €
Charges locatives (Previsionnelles mensuelles les avec regularisation annuelle) 310 €

Autour du bien

Découvrez le quartier
Aximmo Agence

* CC : Charges comprises