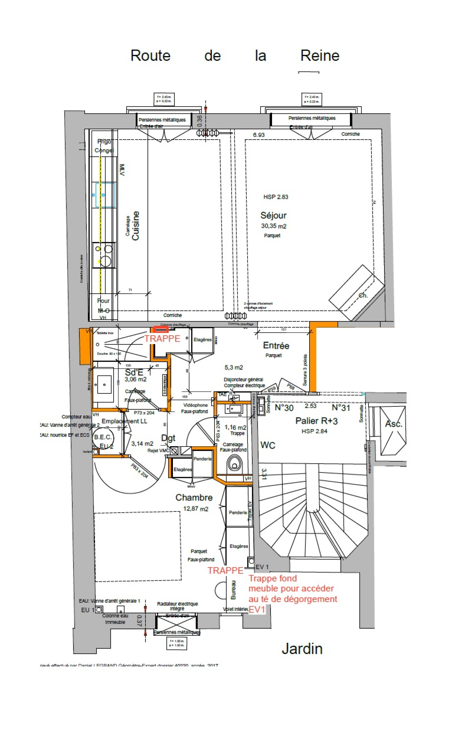
Quartier Mairie. Au sein d'un très bel immeuble, au 3ème étage par ascenseur, superbe appartement de 2P entièrement rénové avec goût, composé d'une entrée avec placards de rangements, d'un très beau double séjour avec cuisine ouverte entièrement aménagée et équipée, d'une chambre à coucher avec rangements, d'une salle de douches et d'un WC indépendant avec point d'eau. Appartement avec de très beaux volumes et du cachet, parquet, moulures et cheminée dans le séjour ainsi que de nombreux rangements et penderies sur mesure. Local vélo / Poussettes.
Cave possible en sus.
A découvrir rapidement!
Contact pour visite : AXIMMO Paris 9ème
 
                 
                     
                         
                             
                             
                                 
                                 
                                 
                                 
                                 
                                 
                                 
                                 
                                 
                                 
                                 
                                 
                                 
                                 
                                 
                                 
                                 
                                 
                                 
                                