+3
Boulogne-Billancourt (92100)

Appartement 2 pièce(s) 1 chambre(s) 51.14 m²

1
Ascenseur
365 000 €
Réf VT2 MAIRIE BOULOGNE

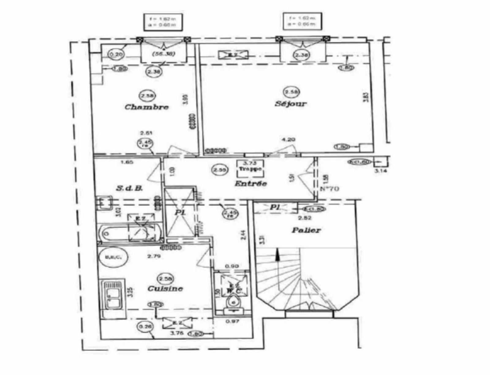
Dans un bel immeuble bien entretenu, situé au 7ème étage (ascenseur jusqu’au 6ème), cet appartement lumineux bénéficie d’une vue dégagée sur le quartier et d’un agencement fonctionnel : une entrée avec rangements, un vaste séjour plein de lumière, une cuisine indépendante, une chambre confortable, une salle de bains et des WC séparés.

Une cave, un local à vélos et poussettes ainsi qu’un système de chauffage central complètent le confort de ce bien. L’accès à l’immeuble est sécurisé par digicode et interphone.

Actuellement loué 1 157 € hors charges (+220 € de charges), cet appartement offre un revenu locatif mensuel total de 1 377 €, garantissant une rentabilité immédiate et sécurisée jusqu’au départ du locataire.

Une adresse centrale, un rendement solide avec une perspective de valorisation : une opportunité stratégique pour tout investisseur à la recherche d’un placement pérenne sur Boulogne.

Beau potentiel de valorisation une fois libre, rare sur le secteur. Dossier sur demande.

Pour toute visite ou information complémentaire, contactez AXIMMO Paris 9

Bilan énergétique

Diagnostics énergetiques
Consommation énergétique
A B C D E F G
Emission de gaz à effet de serre
A B C D E F G

Montant estimé des dépenses annuelles d'énergie pour un usage standard est compris entre 863 € et 1 167 € . Prix moyens des énergies indexés sur les années 2021, 2022 et 2023 (abonnements compris).

A propos de ce bien Caractéristiques de ce bien
  • Surface 51,14 m²
  • carrez 46,42 m²
  • 1 chambre(s)
  • 1 salle(s) de bain
  • construit en 1850
  • cuisine séparée (équipée)
  • Chauffage collectif : radiateur (gaz)
  • exposition Nord
  • 7ème étage
  • 7 étage(s)
  • ascenseur
  • cave
  • visiophone
  • quartier Boulogne - Jean Jaurès, MAIRIE / REINE

Info copro

Copropriété
  • Copropriété Oui
  • Nombre de lots 25
  • Statut du syndic Pas de procédure en cours

Financier

Informations financières
Prix de vente 365 000 € Les honoraires d'agence seront intégralement à la charge du vendeur
Taxe foncière annuelle 1 200 €

Autour du bien

Découvrez le quartier

Simulation

Calcul des mensualités
* Champs obligatoires
Aximmo Agence