Paris (75009)

Appartement 6 pièce(s) 4 chambre(s) 131 m²

1
1
Ascenseur
Réf V10003044

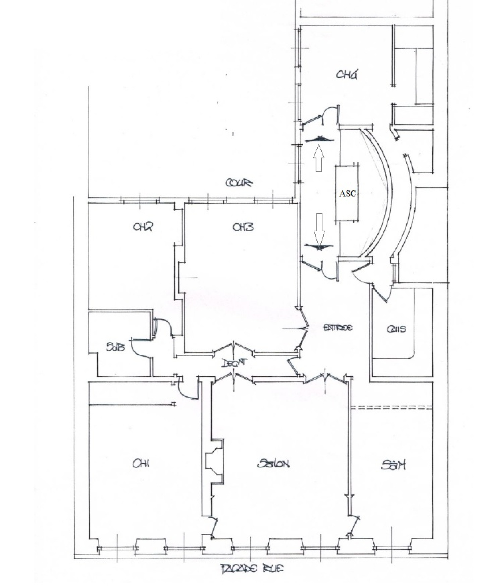
A Paris 9EME arrondissement, Aximmo vous propose un bel appartement familial de 6 PIECES dans le pur style Charles X, quartier ND de Lorette /Saint-Georges. Il se compose d'un séjour avec sa cheminée ancienne, d'une salle à manger, de 4 chambres à coucher, d’une cuisine séparée, une salle de bains avec WC, d’une salle de douche, d’un WC séparé, débarras, rangements. Parquet, moulures, cheminées. Belle hauteur sou plafond (3.10 m). Une cave complète ce bien. Travaux à prévoir. Deux entrées distinctes; beaucoup de potentiel. A découvrir.

Bilan énergétique

Diagnostics énergetiques
Consommation énergétique
A B C D E F G
Emission de gaz à effet de serre
A B C D E F G

Montant estimé des dépenses annuelles d'énergie de ce logement pour un usage standard est compris entre 2 350 € et 3 250 € . 2021 étant l'année de référence des prix de l'énergie utilisés pour établir cette estimation.

A propos de ce bien Caractéristiques de ce bien
  • Surface 131 m²
  • carrez 128 m²
  • séjour 25 m²
  • 4 chambre(s)
  • 1 salle(s) de bain
  • 1 salle(s) d'eau
  • construit en 1870
  • cuisine séparée
  • exposition Est-Ouest
  • 1er étage
  • 6 étage(s)
  • ascenseur
  • cave
  • visiophone
  • interphone
  • quartier Lorette - Saint Georges, Notre Dame De Lorette

Info copro

Copropriété
  • Copropriété Oui
  • Nombre de lots 35
  • Quote part annuelle des charges 3 800 €
  • Plan de sauvegarde Non

Financier

Informations financières
Prix net vendeur 1 300 000 €
Charges 370 €
Taxe foncière annuelle 1 415 €

Autour du bien

Découvrez le quartier

Simulation

Calcul des mensualités
* Champs obligatoires
Aximmo Agence