+10
Paris (75017)

Local commercial 525 m²

5
1
3 465 000 €
Réf V170005322

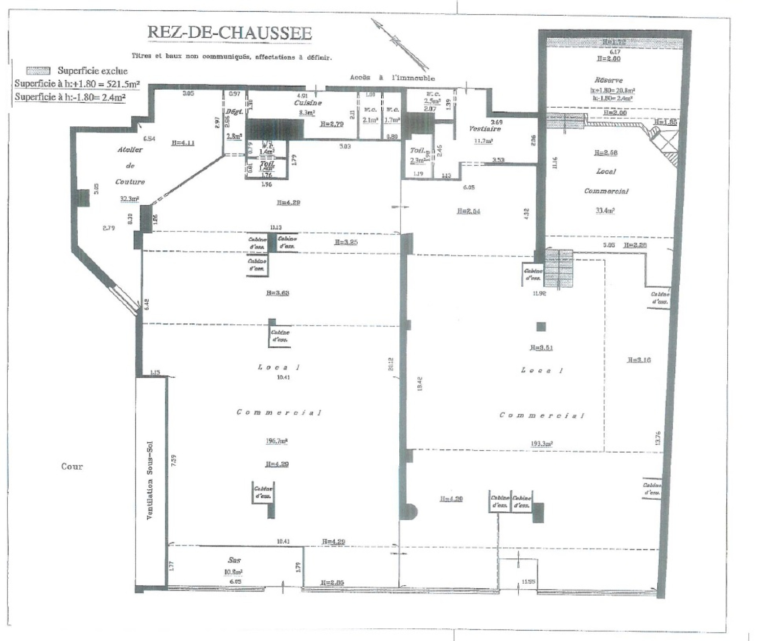
AXIMMO Paris 9 vous propose ce superbe espace de plain-pied d'une superficie de près de 524m² (522 m²+ 2.4m² non carrez) avec emplacements de parkings avec les caracteristiques suivantes :

Linéaire : 20 mètres - Hauteur sous poutre : 4 mètres - Accessibilité : PMR (2 entrées principales, 2 issues de secours), ventilation : double flux

Un open space de 200 m², 7 salles indépendantes, un bureau de direction, un espace de stockage, une salle commune, deux espaces de sanitaires ; 5 emplacements de parking au sous sol.

Espace vide ou avec un ou deux locataires possibles car espace divisible du fait de ses nombreux accès et issues de secours.

Loyer annuel potentiel 220K€, rentabilité à 6.5%. Espace rare.

Bilan énergétique

Diagnostics énergetiques
Consommation énergétique
A B C D E F G
Emission de gaz à effet de serre
A B C D E F G
DPE vierge
A propos de ce bien Caractéristiques de ce bien
  • Surface 525 m²
  • 1 niveau(x)

Financier

Informations financières
Prix de vente honoraires inclus 3 465 000 €
Prix net vendeur 3 300 000 €
Honoraires à la charge acquéreur 5 %
Bail Commercial 3/6/9 ans
Loyer HT 222 000 € / an

Autour du bien

Découvrez le quartier
Emmanuel ABISROR Négociateur