+7
Boulogne-Billancourt (92100)

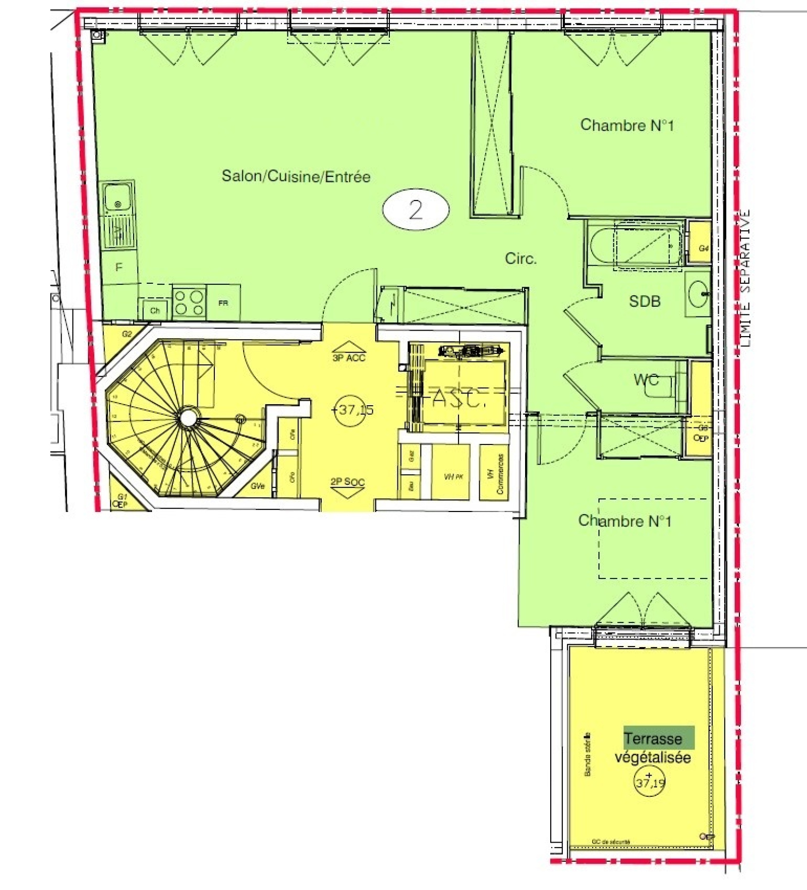
Appartement 3 pièce(s) 2 chambre(s) 69.7 m²

1
Ascenseur
CC*
Réf L420004799

Situé au 1er étage d’un immeuble moderne avec ascenseur, cet appartement NEUFallie confort et élégance.

Il se compose de :

  • Une entrée menant à un vaste séjour lumineux avec cuisine ouverte, entièrement équipée.

  • Deux belles chambres avec rangements intégrés, dont une donnant directement sur un agréable toit-terrasse (partie commune de la copropriété).

  • Une salle de bains moderne et un WC indépendant.

  • Local vélo accessible dans la cour.

Atouts supplémentaires : appartement refait à neuf, prestations de qualité, accessibilité PMR, cadre calme et recherché en plein centre.

Loyer mensuel : 1840 € hors charges - Charges mensuelles : 150 € - Dépôt de garantie (1 mois HC) : 1 840 € .

Si bail code civil, conditions exclues des champs d'application de la loi du 6 juillet 1989. Voir barème agence.


PAS DE COLLOCATION

Contact pour organiser une visite : AXIMMO

Bilan énergétique

Diagnostics énergetiques
Consommation énergétique
A B C D E F G
Emission de gaz à effet de serre
A B C D E F G

Montant estimé des dépenses annuelles d'énergie de ce logement pour un usage standard est compris entre 522 € et 706 € . 2021 étant l'année de référence des prix de l'énergie utilisés pour établir cette estimation.

A propos de ce bien Caractéristiques de ce bien
  • Surface 69,70 m²
  • carrez 69,70 m²
  • séjour 32,30 m²
  • 2 chambre(s)
  • 1 salle(s) de bain
  • construit en 2022
  • cuisine américaine (équipée)
  • Chauffage individuel : chaudière (gaz)
  • exposition Nord-Sud
  • 1er étage
  • 8 étage(s)
  • ascenseur
  • terrasse
  • visiophone
  • quartier Boulogne - Jean Jaurès, Boulogne-Jean Jaures, Marcel Sembat
  • accès handicapé

Financier

Informations financières
Dont état des lieux 209,10 €
Dépôt de garantie TTC 1 840 €
Charges locatives (Previsionnelles mensuelles les avec regularisation annuelle) 150 €

Autour du bien

Découvrez le quartier
Emmanuel ABISROR Négociateur

* CC : Charges comprises