+6
Paris (75009)

Bureaux 137 m²

1
55 000 € / an HT - HC*
Réf L420005336

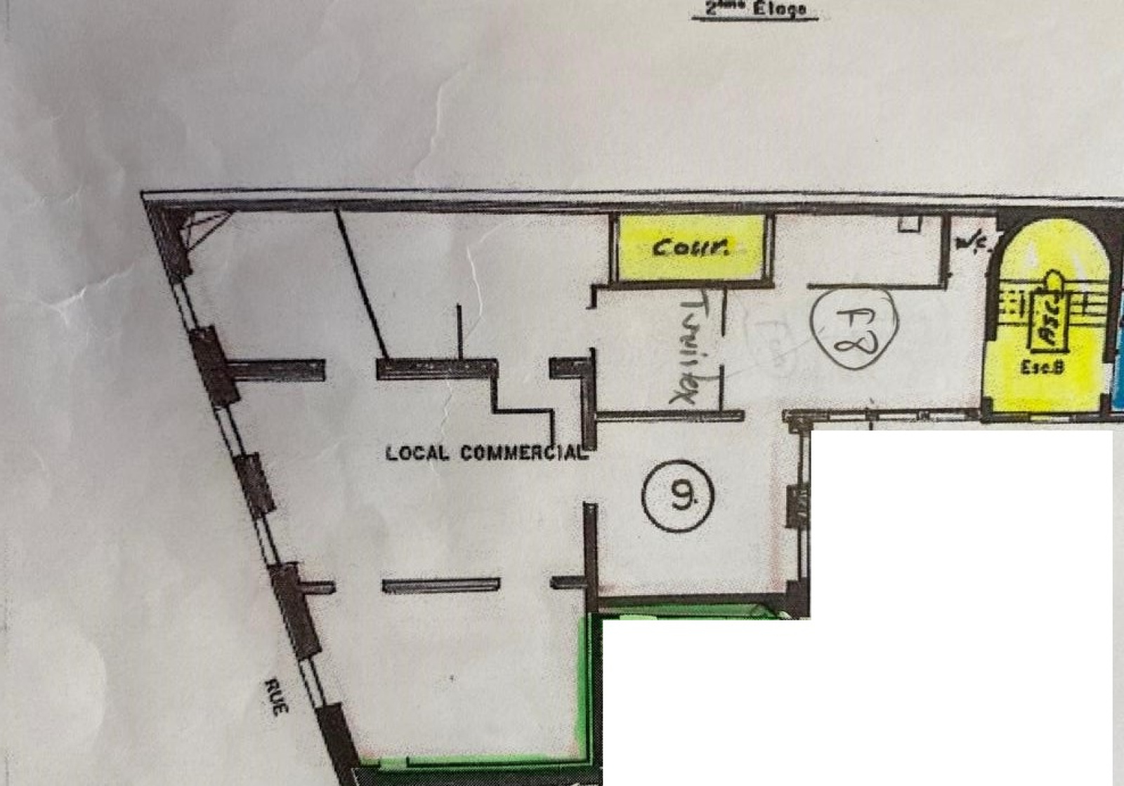
Paris 9ème, au 2ème étage avec ascenseur, bureaux composés d'une entrée de 4 grands  bureaux 1 local technique, une cuisine amménagée et 2 sanitaires. Patio inéterieur de 5 m² environ

Câblage informatique.

Pas de TVA ni de CRL.

Contacter AXIMMO Paris 9ème pour visiter

Bilan énergétique

Diagnostics énergetiques
Consommation énergétique
A B C D E F G
Emission de gaz à effet de serre
A B C D E F G
DPE vierge
A propos de ce bien Caractéristiques de ce bien
  • Surface 137 m²
  • construit en 1900
  • Chauffage : ()
  • 1 niveau(x)
  • 2ème étage
  • 6 étage(s)
  • 1 ascenseur
  • interphone
  • quartier Trinite Liege

Financier

Informations financières
Loyer HT 55 000 € / an
Honoraires HT charge locataire 16 500 €
Dont état des lieux Non renseigné
Dépot de garantie 27 500 €
Bail Bail commercial 3/6/9 ans

Autour du bien

Découvrez le quartier
Aximmo Agence

* HC : Hors Charges

* HT : Hors Taxes