+7
Paris (75009)

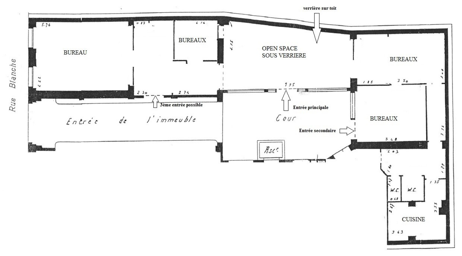
Bureaux 137 m²

HC*
Réf L400003783

Surface de bureaux de 137 m² en RDC sur rue et cour. Ils se composent d'une entrée avec un open space, de 4 bureaux, d'une cuisine, de 2 sanitaires.

Double accessibilité.

Bail 3/6/9 ans - Pas de TVA ni de CRL

Contact pour visites : AXIMMO Paris 9

Bilan énergétique

Diagnostics énergetiques
Consommation énergétique
A B C D E F G
Emission de gaz à effet de serre
A B C D E F G
DPE ANCIENNE VERSION
A propos de ce bien Caractéristiques de ce bien
  • Surface 137 m²
  • construit en 1900
  • Chauffage individuel : chaudière (gaz)
  • 6 étage(s)
  • quartier Blanche - Trinité, Nouvelle Athenes, Saint Lazare, South Pigalle, Trinité

Financier

Informations financières
Dont état des lieux Non renseigné
Dépot de garantie 24 300 €
Bail Commercial 3/6/9 ans

Autour du bien

Découvrez le quartier
Aximmo Agence

* HC : Hors Charges