+4
Paris (75002)

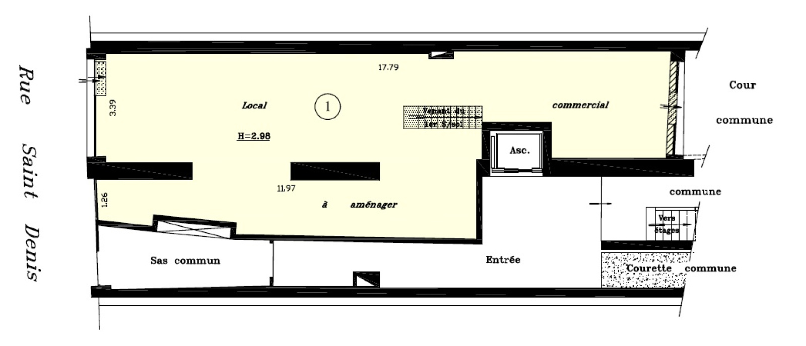
Local commercial 80 m²

50 000 € / an HC*
Réf L170005378

Aximmo Paris 9 vous propose en plein coeur de la rue Saint Denis à proximité de Réaumur Sébastopol, un local commercial de plain-pied d'une supericie de près de 80m² au rdc et d'une réserve saine au sous sol de près de 30m². Le local dispose d'un linéaire de près de 5m et d'une baie vitrée arrière amenant davantage de luminosité, un bloc sanitaire. climatisation.

Tous commerces sauf nuisances.

Garanties demandées.

Bilan énergétique

Diagnostics énergetiques
Consommation énergétique
A B C D E F G
Emission de gaz à effet de serre
A B C D E F G
DPE vierge
A propos de ce bien Caractéristiques de ce bien
  • Surface 80 m²
  • construit en 1800
  • quartier Réaumur-Sébastopol, Sentier, STRASBOURG-SAINT-DENIS

Financier

Informations financières
Loyer 50 000 € / an
Honoraires charge locataire 15 000 €
Dont état des lieux Non renseigné
Dépot de garantie 12 500 €
Charges locatives (provision donnant lieu à régularisation annuelle) 3 400 €
Bail Commercial 3/6/9 ans
Echéance du bail 2026-03-12

Autour du bien

Découvrez le quartier
Aximmo Agence

* HC : Hors Charges