+2
Paris (75002)

Bureaux 90 m²

HC*
Réf L170004119

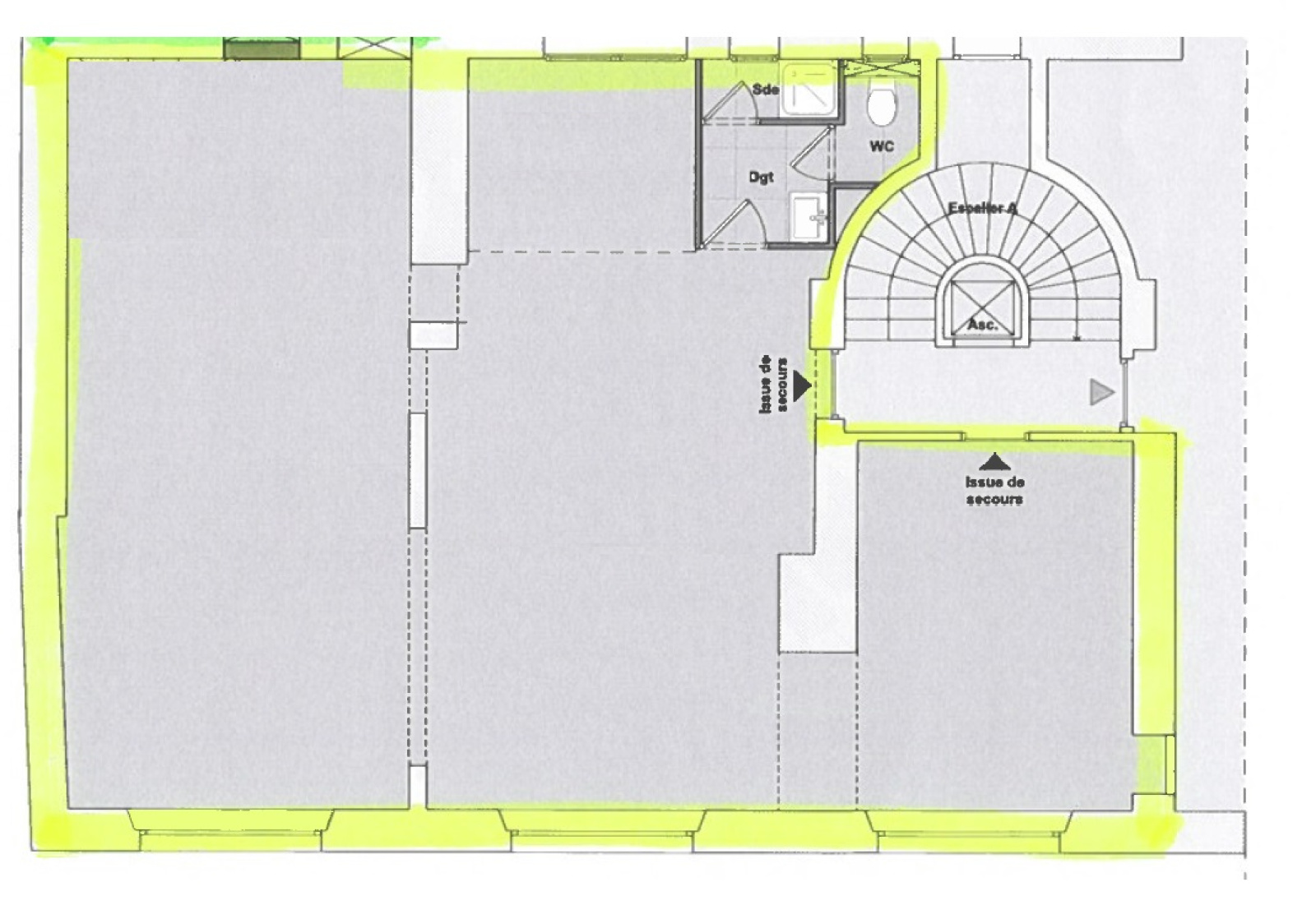
En plein cœur du Sentier et de la rue du Caire, bureaux de 90m² refaits à neuf au 1er étage disposants de 2 open space, d'un bureaux indépendant, de blocs sanitaires et douche. Climatisation. Hsp 2.20 m

Possibilité d'extension avec un local au RDC d'une superficie de près de 150m² et d'une réserve de près de 30m² ou d'une surface mitoyenne au 1er étage de 51 m² + terrasse !

PAS DE TVA NI CRL

Contacter Aximmo Paris 9.

Bilan énergétique

Diagnostics énergetiques
Consommation énergétique
A B C D E F G
Emission de gaz à effet de serre
A B C D E F G
DPE ANCIENNE VERSION
A propos de ce bien Caractéristiques de ce bien
  • Surface 90 m²
  • 1er étage
  • quartier Sentier

Financier

Informations financières
Dont état des lieux Non renseigné
Dépot de garantie 19 125 €
Bail Commercial 3/6/9 ans
Echéance du bail 2024-09-10

Autour du bien

Découvrez le quartier
Aximmo Agence

* HC : Hors Charges