+11
Paris (75017)

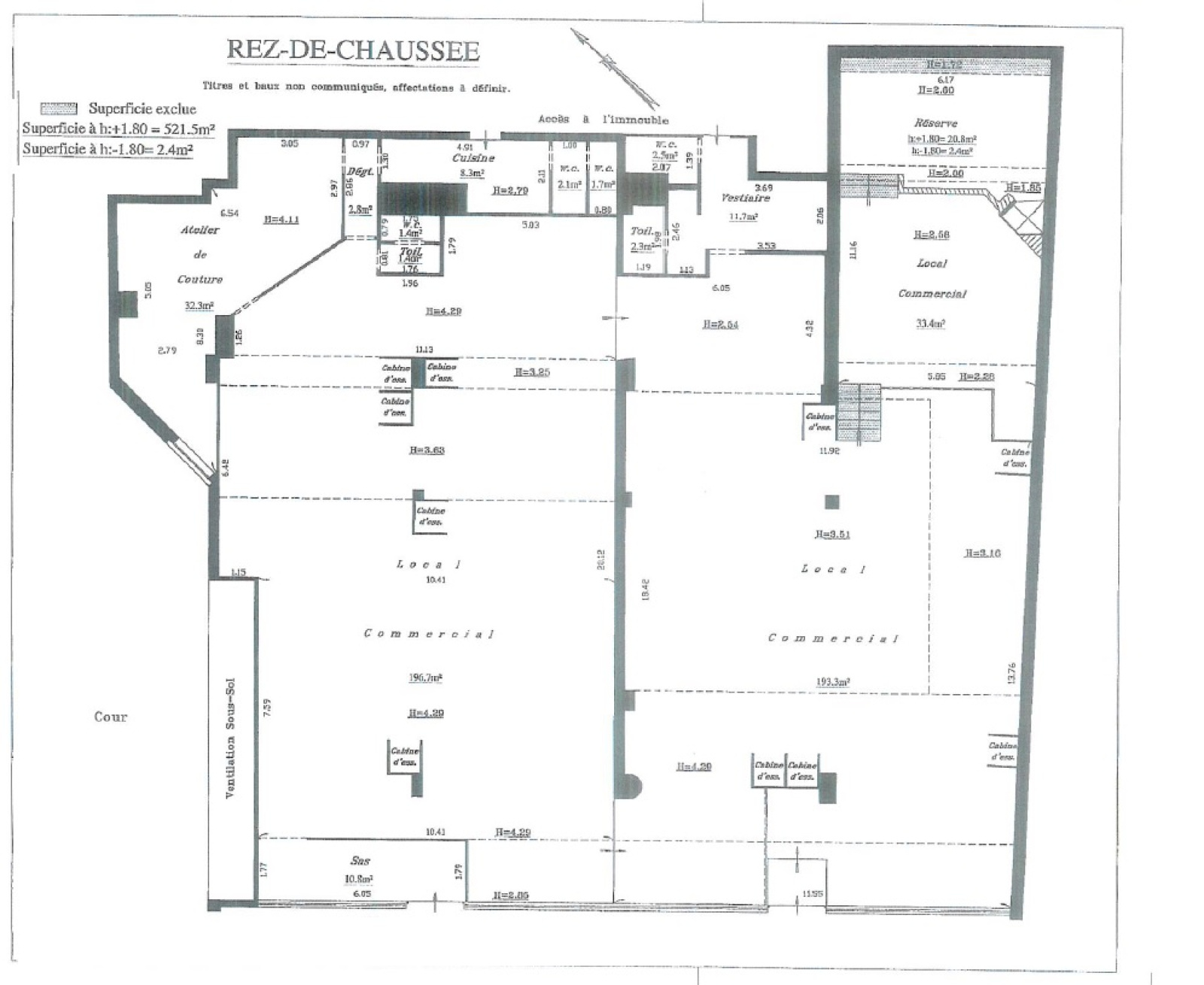
Local commercial 524 m²

5
1
219 996 € / an HT - HC*
Réf L170005333

AXIMMO Paris 9 vous propose, ce superbe espace de plain-pied d'une superficie de plus de 524m² et 5 emplacements de parkings avec les caracteristiques suivantes :

Linéaire : 20 mètres - Hauteur sous poutre : 4 mètres - Accessibilité : PMR (2 entrées principales, 2 issues de secours), ventilation : double flux

Un open space de 200 m², 7 salles indépendantes, un bureau de direction, un espace de stockage, une salle commune, deux espaces de sanitaires ; 5 emplacements de parking au sous sol.

Espace rare.

Bilan énergétique

Diagnostics énergetiques
Consommation énergétique
A B C D E F G
Emission de gaz à effet de serre
A B C D E F G
DPE vierge
A propos de ce bien Caractéristiques de ce bien
  • Surface 524 m²
  • construit en 1970
  • 1 niveau(x)

Financier

Informations financières
Loyer HT 219 996 € / an
Prix net vendeur 2 850 000 €
Honoraires HT charge locataire 65 998,80 €
Dont état des lieux Non renseigné
Dépot de garantie 54 999 €
Bail Commercial 3/6/9 ans

Autour du bien

Découvrez le quartier
Emmanuel ABISROR Négociateur

* HC : Hors Charges

* HT : Hors Taxes