+1
Paris (75015)

Local commercial 73 m²

4.50m
HC*
Réf L170004272

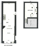
En plein cœur du secteur très commerçant de la rue Lecourbe et de tous ses commerces (supermarché, primeur, opticien, caviste, fromager, boulanger, etc.), AXIMMO Paris 9 vous propose ce superbe local en location pure d'une superficie totale de 86m² :

61m² au RDC composé d'un bel espace commercial et laboratoire arrière, un escalier amenant au sous-sol de 25m² (pondéré à moitié) avec 2 sanitaires et réserves.

Local assujettit à T.V.A. Dépôt de garantie : 3 mois de loyer HC.

Bilan énergétique

Diagnostics énergetiques
Consommation énergétique
A B C D E F G
Emission de gaz à effet de serre
A B C D E F G
DPE vierge
A propos de ce bien Caractéristiques de ce bien
  • Surface 73 m²
  • Chauffage individuel : trad_type_chauff_air_eau (climatisation)

Financier

Informations financières
Dont état des lieux Non renseigné
Dépot de garantie 12 000 €
Bail Commercial 3/6/9ans

Autour du bien

Découvrez le quartier
Emmanuel ABISROR Négociateur

* HC : Hors Charges